La capacidad de adaptación y la flexibilidad son dos de las premisas clave que hacen de cualquier diseño uno distinguido y lleno de valor. En el estudio de las necesidades específicas del cliente y en la resolución de problemas para satisfacerlas se esconde precisamente el éxito de este proyecto, cuyo arquitecto responsable, Iker López Consuegra de Iker López Estudio, ha conseguido modular una vivienda de alma camaleónica, que cambia según la forma de vida del propietario adaptándose a diferentes ocupaciones y flujos de uso.
La reforma de esta casa de casi 150m2, ubicada en el barrio de la Estrella de Madrid, se ha abordado, por tanto, de forma integral y con un objetivo principal: dar respuesta a través de la configuración del espacio a dos estilos de vida diametralmente opuestos; el de un hombre soltero y cosmopolita y el de un padre de familia con cuatro hijos que conviven con él cada dos semanas.
“Conseguir articular una vivienda apta para ser habitada de forma diferente cada 15 días y que funcionase en ambos estadios a la vez, sin perder funcionalidad y manteniendo el sentido en los dos planos, ha sido el mayor reto de este trabajo, aunque también lo que lo convierte en uno especial”, comenta López Consuegra.
El diseño como elemento vertebrador
Para cumplir con el programa de necesidades, el arquitecto explica que, de las grandes inquietudes culturales del cliente (profesional del sector de la aeronáutica y gran apasionado de la lectura) ha nacido la respuesta de diseño sobre la que gira el proyecto. “Hemos creado un elemento vertebrador central que separa conceptualmente la vivienda en dos, según momentos de uso, pero que, a la vez, resulta útil en ambos escenarios”.
Se trata de una biblioteca que hace de límite entre lo individual y lo familiar y que cuando la casa se vive en este segundo estadio funciona como distribuidor de las habitaciones infantiles y como zona de estudio común de los hijos, dando la importancia que el cliente buscaba a la relación entre ellos. Algo, además, que permite liberar de la carga académica a sus dormitorios, convirtiendo a éstos en refugios individuales y parcelas de espacio personal para cada uno. Aquí, los tonos vivos y colores de los libros, los utensilios de oficina y la madera natural de las sillas de diseño italiano compradas por el propietario años atrás, rompen el blanco glaciar de la estructura de diseño aportando dinamismo y vitalidad.


Dicha biblioteca central ha puesto en valor un espacio muy potente y amplio de la vivienda en su origen, el antiguo hall, que estaba completamente en desuso. Tras la reforma ha pasado a ser el corazón de la casa, la frontera entre sus dos caras y ha ganado en funcionalidad y en luz.
Para el diseño de esta biblioteca se ha tenido en cuenta las circulaciones de las estancias que lo rodean: las habitaciones infantiles y un baño, además de las necesarias para el uso de los cuatro puestos de estudio que alberga. Se ha creado un elemento liviano y ligero con planchas de acero cortadas por láser para las zonas de trabajo y estanterías descolgadas de chapa microperforada blanca para ganar en transparencia, con varillas calculadas para que soporten el peso de todos los libros. El arquitecto añade que “para el diseño de las baldas nos hemos inspirado en los bonsáis, cuando se les corta las ramas para dejar una disposición muy controlada y armónica entre llenos y vacíos” con la intención de no abigarrar el espacio en ningún caso.
Juego de geometrías
El trabajo de diseño y proyección de la biblioteca marca también un código lingüístico dentro del proyecto, a través del que el estudio de arquitectura ha diferenciado espacios y organizado la planta de la casa. “Se tomó la decisión de utilizar conceptos geométricos diferentes en ambos estadios de la vivienda dado que una geometría convencional no daba respuesta a las necesidades del proyecto”, argumenta López Consuegra.
Por un lado, tenemos una parte muy ortogonal y ordenada (la zona adulta que funciona como piso de soltero); y por otro, otra que aparece con formas oblicuas, curvas y divertidas (la zona familiar) con elementos, eso sí, que pertenecen a los dos mundos: la biblioteca, ya mencionada anteriormente, y la cocina. “Aun con sus diferencias, se comparten estrategias geométricas en los dos estadios”, remata el responsable del proyecto.

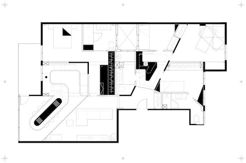
Así pues, la vivienda se distribuye en cuatro dormitorios, tres baños (dos de ellos en suite), una cocina abierta al salón, y una biblioteca central compartida. De dicha biblioteca nacen los tres dormitorios infantiles, uno de ellos con aseo incluido, y el baño general de la casa que se aísla de la zona común a través de unas barbas de ballena (tiras de PVC) que independizan térmicamente ambas áreas y que, además, aportan cierta transparencia permitiendo ver a través y logrando entender así todo el espacio.
Precisamente para cada baño se ha utilizado un código de colores diferente y una geometría específica que los dota de identidad propia. El baño principal ubicado dentro del dormitorio del propietario se ha dispuesto en su color favorito, el azul, y juega con geometrías rectas generando un espacio regular. El de invitados, en verde, es oblicuo y anguloso dónde los puntos de fuga parecen los protagonistas y el tercero, el incluido en una de las habitaciones de los niños, es mostaza y se adapta al espacio original de la casa en esa zona.

Todos combinan con una tonalidad blanca de base que los hace “respirar” y disponen de mobiliario hecho a medida con sanitarios de la marca Roca, modelo In-wash suspendido en el principal y el modelo GAP para los inodoros; y el Inspire Round para los lavabos.
En el baño principal, además, la zona de aguas continúa con el tono blanco de un microcemento que lo hace funcional evitando todo tipo de juntas. Aquí, la gran ducha cuenta con una bancada longitudinal donde sentarse o disponer utensilios y, a su vez, se ha cerrado hasta arriba ofreciendo la posibilidad al propietario de disfrutar de baños de vapor si lo desea.

En cuanto a los dormitorios, destaca el diseño a medida de todos los armarios. Con uñeros redondeados de suelo a techo y sin ningún tipo de molduras el de los infantiles, ofreciendo una estética contemporánea y minimalista; y el del cliente, a modo de gran vestidor diseñado a base de cajas de madera superpuestas de diferentes tamaños con elementos de unión en tonalidad más oscura, y de las que salen unas baldas extraíbles para el almacenaje de la ropa.
Este diseño ha sido milimétricamente pensado para que todas las prendas del cliente tengan su espacio específico. En él, además, hay una tarima registrable que permite el almacenamiento oculto de más ropa y que hace las veces de apoyo o asiento en el uso del vestidor.
Este diseño ha sido otro de los puntos fuertes del proyecto, ya que como, además, enfatiza Iker López Consuegra, “se adapta a los distintos elementos arquitectónicos de la vivienda, como vigas, pilares y ascendentes de instalaciones”. Ha sido la mejor manera de sacar partido a todos esos rincones muertos que, de otra manera, hubieran quitado espacio. “En este caso se ha buscado que los elementos estructurales sumen, en lugar de restar”, apuntilla.
También para diferenciar las estancias más cálidas de la vivienda, de las de aguas y de mayor tránsito -que precisan de mayor resistencia-, se ha empleado diferente tipo de pavimento. Microcemento en diferentes tonos neutros en cocina, baños y biblioteca central y tarima de roble claro de Quick Step, línea Majestic, en los dormitorios y el salón.
En esta última estancia (el salón) el pavimento actúa claramente como divisor visual del espacio separando esta estancia de la cocina. La decoración del salón, además, se caracteriza por su composición liviana, que invita a la calma, con un mueble de madera natural y un sofá y un chaise longue protagonistas en el centro del espacio. Una gran pieza de arte con tonos amarillos que corona la estancia, los cojines y las plantas, dispuestas tanto aquí como en la cocina, aportan color, frescor y el toque natural a la zona.

La expresión de una casa vivida
Que el diseño de esta vivienda madrileña invita a ser compartida parece claro. Ya sea en su modo familiar o individual. Otro ejemplo de ello es, sin duda, la cocina. Esta estancia, que se ha planteado completamente dinámica y abierta al salón, busca conectar al propietario de la casa y gran amante también de la gastronomía, con su familia e invitados cuando los tiene. De ahí que una gran península, de 4,3 metros y con capacidad hasta para diez comensales a la vez, cruce en diagonal el espacio, consiguiendo ganar en amplitud, así como maximizar la capacidad de almacenaje. La distribución del mobiliario se caracteriza por disponer de pocos módulos altos y muchos bajos, que continúan en una misma línea hasta desembocar en dicha península. Frente a ella, taburetes diseñados por Alexander Gufler para la firma TON en haya natural.
Con la misma estrategia, el estudio ha apostado por dos tableros de carrocero con corte redondeado a modo de baldas suspendidas que hacen ganar aún más en almacenaje, en este caso visto, sin resultar elementos visualmente pesados. “El proceso de diseño”, apostilla López Consuegra, “nos recuerda a la construcción de una guitarra. Se han dispuesto dobles fresados para ocultar todas las canalizaciones y cableado y se ha instalado iluminación de intensidad regulable coincidiendo sobre el eje de las copas para las que se ha realizado el diseño”. De esta forma la iluminación del sobre de la península resulta aún más interesante, sugerente y llena de matices cambiantes gracias a los reflejos que las propias copas generan. “Hemos querido hacer aquí nuestro pequeño guiño a las maravillosas luminarias de Mayice en cristal soplado que tanto nos gustan en el estudio”, comenta.
La estética más informal de estas baldas suspendidas, entorno a las que, además, el estudio ha diseñado un juego de bandejas para servir y una tabla de corte, contrasta y equilibra el diseño más sofisticado de una cocina en la que también destaca el grifo de pescadero de mercado que cuelga del techo para facilitar las labores en el cocinado y que también pretende convertirse en otro de los puntos focales más interesantes de esta estancia.
Dentro del diseño de la cocina se ha proyectado, además, una gran vinoteca empotrada que asoma al salón en la que poder almacenar la colección de vinos del propietario, como otra de sus grandes pasiones.
Una iluminación que potencia y acompaña
Así mismo, la iluminación ha sido otro de los campos de trabajo más cuidados de este proyecto de reforma y que merece la pena mencionar. En cada una de sus estancias, la vivienda cuenta con diferentes tipos de luces que refuerzan las claves de cada espacio.
En la cocina, por ejemplo, además de los matices que se generan a través de las copas, la iluminación va acorde con el mobiliario, siendo esta más fría para contrastar con otra más cálida dispuesta en la zona del salón y diferenciando ambos espacios también a través de la luz.
El diseño de la biblioteca central se acompaña además de un juego de luces que responde a las diferentes necesidades de los habitantes en esa zona.
Por un lado, dispone de una iluminación indirecta perimetral en el techo de microcemento blanco que aporta más sensación de amplitud todavía, pero que con su funcionalidad regulable es capaz de crear un ambiente más íntimo y cálido a demanda. Y, por otro lado, las estanterías más bajas de la estructura cuentan con iluminación LED oculta en la única varilla que no tiene una función estructural de soporte y que ha sido colocada para llevar el cableado e iluminar cada puesto de trabajo respectivamente. Cuando estos están encendidos las baldas parecen como si flotasen.
En las habitaciones infantiles, el estudio de arquitectura ha aprovechado las esquinas para diseñar una iluminación puntual y controlada, de tal manera que se potencian los ángulos no rectos y las zonas diagonales, iluminando a la vez las zonas de almacenaje.
La guinda del pastel en esta reforma la ponen dos elementos conservados de la casa original que se han actualizado con recursos low cost, pero que conservan la estética de antaño: los radiadores antiguos recuperados con pintura calórica; y la puerta de acceso a la vivienda, que también se ha conservado, incorporando unos herrajes dorados estilo años 80 y pintándola con martelé, la pintura metálica que brilla, típica de los ascensores.
Iluminación artesanal
Para el proyecto de iluminación se instaló una luz a base de tiras led regulables marca Led Home de 120 led/m con una potencia de 60 W cada 5 m. en una candileja del techo para poder controlar la iluminación del espacio y garantizar el control de una buena iluminación.
En la balda se cortó artesanal y cuidadosamente en cuñas el perfil metálico junto con el difusor para poder adaptar las tiras led a las curvaturas de la balda, se utilizo una tira led regulable Led Home de 120 led/m con una potencia de 60 W cada 5 m. Dejando varillas preparadas para esconder los cables por su interior.
Para las baldas de la cocina se empleó la misma iluminación (Led Home de 120 led/m con una potencia de 60 W cada 5 m) y los cables van escondidos también por las varillas atravesando dobles fresados que se realizaron en el tablero de carrocero por la dos caras pensados para que la alimentación llegue a la fuente de luz sin que se vea el cableado con un gesto muy similar al cosido de una vela de tal manera que nunca se ve el cable que alimenta la iluminación porque queda dentro del tablero fenólico.
Para la mesa se utilizó una chapa de acero lisa cortada por láser de 3 milímetros de espesor. Que se remató con una pletina perimetral de 30 mm y de 1,5 de grosor soldada.
Para garantizar un buen acabado se hacían tramos cortos de soldadura y se refrigeraba con agua para evitar que la chapa perimetral y la chapa de 3 mm se doblasen debido al calor de la soldadura, consiguiendo que mantuviese su geometría lo más inalterada posible debido al proceso de fabricación. Posteriormente se repasaba con discos de cerámica para mejorar el acabado del cordón de soldadura antes del proceso de lacado.
Las baldas suspendidas están construidas con chapa microperforada de 2 mm de grosor y con un coeficiente de perforación de 20 %
Para la unión entre varillas se utilizó un empalmador de varillas de métrica 6 de 3 cm de largo embebido en la varilla hueca y se remató en su cabeza con puntos de soldadura.
Para alimentar la iluminación en las baldas se dejaron varillas huecas qué atravesaban la chapa microperforada para esconder el cable hasta la fuente de luz.
Para que la iluminación lineal LED que bordea todo el perímetro de la balda se fue cortando el perfil de manera muy artesanal en cuñas el perfil y el difusor del led adaptándolo a las curvaturas de la balda. Se eligió un led de 120 l/m puntos para lograr una iluminación homogénea. Al regular la intensidad de la iluminación conseguimos una fuente de luz apta para el espacio de estudio qué tiene debajo pero también permite dejar una luz tenue que enfatiza la liviandad del conjunto y la hace flotar si la estancia se encuentra a oscuras consiguiendo una sensación muy etérea.
FICHA TÉCNICA
• Nombre del proyecto: REFORMA EN ESTRELLA
• Autores Proyecto: IKER LÓPEZ ESTUDIO
• Arquitectura: IKER LÓPEZ ESTUDIO
• Diseño Interior: IKER LÓPEZ ESTUDIO
• Emplazamiento: DISTRITO DE ESTRELLA - MADRID
• Cliente / Promotor: PRIVADO
• Contratista: R CONSTRUCCIONES
• Fecha Construcción: Finalización enero 2020
• Superficie: casi 150 m2
• Fotografía: IKER LOPEZ ESTUDIO
• INDUSTRIALES:
- CARPINTERIA EXTERIOR: CORTIZO “COR 70 Hoja Oculta RPT”
- CERRAJERÍA: MANUEL GALAN MG CERRAJEROS
- SOLADOS Y ALICATADOS: AZULEJOS PEÑA
- INSTALACIONES: R CONSTRUCCIONES
- ILUMINACIÓN: R CONSTRUCCIONES
- CLIMATIZACIÓN: R CONSTRUCCIONES
- APARATOS SANITARIOS Y GRIFERÍA: ROCA Inspira, roca in-wash, roca gap, grifería grohe
- CARPINTERIA INTERIOR: R CONSTRUCCIONES
- PINTURAS: PAREDES PINTADAS A LACA. Pintura laca acrilica de aspecto mate Seigneurie decoracion. Disolvente Titanlux Mate
- PAVIMENTOS Y REVESTIMIENTOS INTERIORES: MICROCEMENTO MONTÓ Y TARIMA LAMINADA QUICK STEP MAJESTIC “ROBLE CLARO NATURAL”
- TABIQUES Y TECHOS: TABIQUE CARTON YESO KNAUF.
- MOBILIARIO: los taburetes Merano de la firma TON. El aparador Adara de Momoca. El sofá es de la Oca . El galán es de Viccarbe, y las mesitas son de BO Concept. La lámpara del dormitorio es la IC de Flos. Algunas lámparas hechas de luz y olé, Ikea y vajilla de muji.
- ILUMINACIÓN: SIMON.
Política de privacidad | Cookies | Aviso legal | Información adicional| miembros de CEDRO