Suscribirse al Boletín
Mayo -Junio 2025
Anuario 2025
Especial Arquitectura y diseño de interiores 2024
Últimos nombramientos
Próximos eventos
Artículos
?>
16/09/2021 / ANFAPA / 12.916

Morteros de albañilería - Deficiente ejecución

 

Nos encontramos con problemas en la aplicación de los morteros de albañilería por una incorrecta ejecución, en muchos casos son consecuencia de la falta de mano de obra especializada y también es común un escaso control en la ejecución.

 

En relación con los morteros de albañilería, pueden darse varias patologías, como punto de partida, deberemos confirmar, que el mortero de albañilería que viene prescrito en proyecto es el idóneo para la aplicación que vamos arealizar; si no está bien definido ahí comenzarán los problemas. Asimismo, deberemos tener presentes unas prestaciones fundamentales en el momento de uso, y que sea aplicado de forma correcta, así evitaremos patologías como eflorescencias, fisuras, humedades etc.

 

Según su origen los problemas que nos podemos encontrar son:

GRIETAS O FISURAS

Son muy comunes, sus principales causas se deben a:

 

  • Falta de traba suficiente entre las piezas de albañilería.

Normalmente aparecen en las esquinas, en uniones en el mismo plano entre fábricas de ladrillo diferentes o tramos realizados en distintos momentos en los que para continuar la fábrica, se dejan normalmente unos enjarjes sobre los que posteriormente suelen aparecer las grietas, ya que resultan insuficientes para absorber los movimientos comunes de la obra.

Son un punto débil y las lesiones provocadas dependerán de su dimensión y posición. Hay que hacerlas con las dimensiones del proyecto, si se aumenta su anchura aparecerán grietas. Las más peligrosas son las horizontales y en la parte baja del cerramiento.

 

  • Deficiente ejecución de las juntas de dilatación.

Al no respetar la junta de dilatación se manifiesta una fisura en la junta del soporte de manera lineal. Cuando la junta de dilatación no está bien acabada pueden aparecer grietas en cualquier punto del paramento, a distancias más o menos regulares.

 

  • Eflorescencias.

Se deben normalmente a un aumento de agua y suelen desaparecer tras la limpieza final de los trabajos de ejecución. Asimismo, puede producirse por un contacto en la obra de los materiales con suciedad o sales. Todo ello puede provocar:

•    La creación de depósitos superficiales de sales.

•    El desconchado y desprendimiento de capas superficiales de ladrillo.

•    Manchas superficiales de diferentes colores según el tipo de eflorescencia.

•    Para prevenirlas es importante impedir en obra las filtraciones de agua que mojen la fábrica y mantener limpios los acopios de materiales.

 

  • Tiempos de fraguado.

El poco tiempo de trabajabilidad del mortero provoca que se limite la absorción de agua y se prolongue el fraguado. Para evitarlo se aconseja, colocar el ladrillo lo más seco posible y utilizar morteros industriales con estabilizantes que aumente su tiempo de trabajabilidad.

 

Uso de morteros industriales 

Desde ANFAPA recomendamos siempre el uso de morteros industriales cuyo control, distribución y homogeneidad garantizan las características necesarias para una ejecución de alta calidad.

Estos morteros son los únicos que aseguran uniformidad en la textura, tono y color a lo largo de la obra, lo cual resulta imposible de conseguir con los morteros “in situ”.

Debemos desterrar de las obras los morteros realizados in situ, en cuya elaboración intervienen varias manos, diferentes maneras de hacer y dosificaciones aleatorias que finalmente traen como consecuencia, resultados indeseados con acabados imperfectos, tonalidades y colores dispares y múltiples patologías que pueden evitarse fácilmente con el uso de morteros industriales los cuales ofrecen todas las garantías del fabricante que los suministra.

Realiza obras de calidad, utiliza morteros industriales.

Desterremos el uso de los morteros realizados “in situ”.

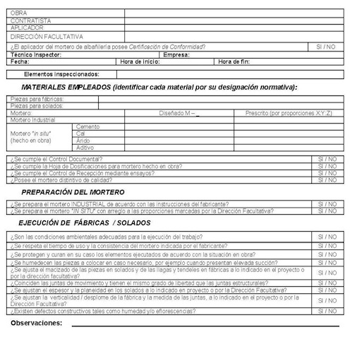
Para el control de ejecución hay que llevar una lista de comprobación que recoja los puntos críticos relacionados con los morteros de albañilería. Con ello daremos cumplimiento al CTE dentro de su parte I Art 7.3.

 

FICHA DE INSPECCIÓN

CTE Parte I Art 7.3. Control de ejecución: Morteros para Albañilería

Datos del autor
Nombre ANFAPA
Empresa ANFAPA
Cargo Departamento Técnico
Biografía

Art. Online
Entrevistas

Utilizamos cookies propias y de terceros para elaborar información estadística y mostrarte publicidad personalizada a través del análisis de tu navegación, conforme a nuestra Política de cookies.
Si continúas navegando, aceptas su uso.


Más información

Política de privacidad | Cookies | Aviso legal | Información adicional| miembros de CEDRO